关注:
  • 设计热线:18841577517(电话微信同步)
     
    预约设计
    案例作品
      设计师:
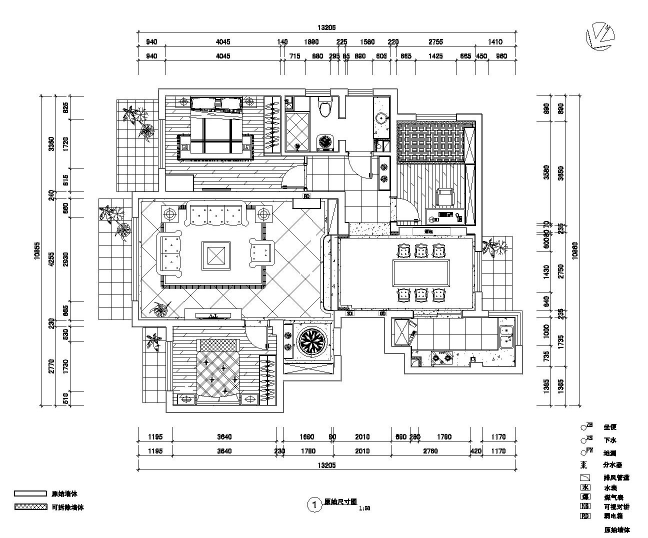
      案例名称:江景之都
      户型:普通住宅更多案例
      面积:120m²
      风格:欧式古典
      区域:元宝区
      让简约欧式设计说明了中国化的欧式风格,更符合了中国人的审美观念,让内敛的感觉显现出来。在简欧风格中传统欧式风格的高雅被保留下来,简化了欧式风格,让线条更加的流畅,也让气氛更贴近自然装修中不能太过于艺术化,也不需要太多华而不实的装饰,所以简欧风格多了一些实用的装饰。注重空间的合理规划,也注重典雅高贵的体现。带着一丝小资情调,让生活充满了情趣感。不要使用暗淡的复古风格瓷砖,跟简欧风格传递出来的现代气息不符合,可以使用地板,如果使用拼花的大理石地砖在厅堂地面做出造型可以给简欧风格的屋子增色不少。
      关注:
      设计热线:18841577517(电话微信同步)